3928 BLUETHREAD WAYPOINCIANA, FL 34759




Mortgage Calculator
Monthly Payment (Est.)
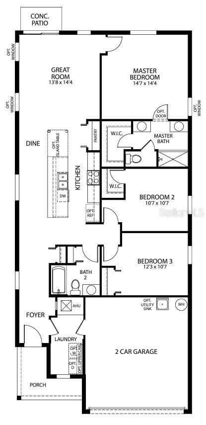
$1,296Pre-Construction. To be built. Lake Deer Estates – Elegance & Comfort Combined! Sidewalk-Lined Cul-de-Sac Living! This charming home offers a thoughtfully designed, highly efficient floor plan that maximizes every inch of space. A welcoming front porch opens to a mudroom with washer and dryer, providing easy access to the spacious 2-car garage and seamlessly connecting to the expansive kitchen at the heart of the home. The kitchen is a chef’s dream, featuring a full line of stainless steel appliances including an ESTAR side-by-side refrigerator, stone countertops, a large island, and abundant pantry space, with a convenient pass-through to the great room for effortless entertaining. The bright and airy great room at the rear of the home is filled with natural light through a large sliding glass door that opens to the patio overlooking a retention pond, offering serene water views and the perfect setting to relax or host guests. The primary suite, tucked away for privacy, includes a spacious walk-in closet and a luxurious bathroom with tiled shower and enclosure. Two additional bedrooms provide generous space and ample closet storage, complemented by a second full bath. Additional features include landscaping with front irrigation, modern smart home upgrades such as Ring Video Doorbell, Smart Thermostat, Keyless Entry Smart Door Lock, and Deako Switches, and a full builder warranty for peace of mind. Blending style, function, and comfort, this home in Lake Deer Estates offers the perfect retreat in a scenic, family-friendly community.
| 2 months ago | Listing updated with changes from the MLS® | |
| 3 months ago | Price changed to $283,990 | |
| 8 months ago | Listing first seen on site |
Listing information is provided by Participants of the Stellar MLS. IDX information is provided exclusively for personal, non-commercial use, and may not be used for any purpose other than to identify prospective properties consumers may be interested in purchasing. Information is deemed reliable but not guaranteed. Properties displayed may be listed or sold by various participants in the MLS Copyright 2026, Stellar MLS.
Last checked: 2026-04-25 01:50 PM EDT


Did you know? You can invite friends and family to your search. They can join your search, rate and discuss listings with you.