Villa Palmeras 326 CALLE COLTONSAN JUAN, 00915




Mortgage Calculator
Monthly Payment (Est.)
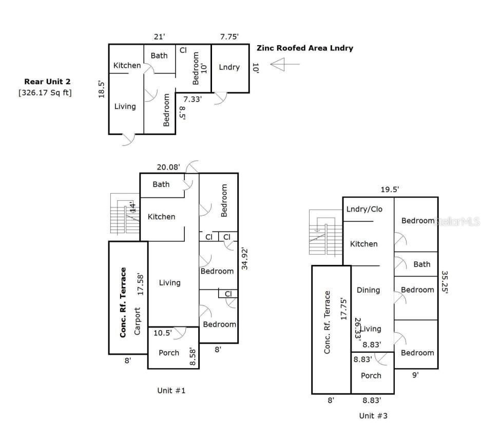
$1,095Good opportunity in Villa Palmeras, San Juan. Multi-family property for sale with 3 units, ideal for investors or large families looking for space and profitability. First level: 3 bedrooms, 1 bathroom, living room, dining room and kitchen. Second level: 3 bedrooms, 1 bathroom, living room, dining room and kitchen. Third unit: Independent apartment with 2 bedrooms, 1 bathroom and living room Located in the metropolitan area. Excellent rental income potential. Spacious and versatile structure. Perfect for living in one unit and renting out the others. Perfect for generating residential income from a single property. Three opportunities in one investment. Qualify FHA 203K or cash purchase.
| 6 hours ago | Listing updated with changes from the MLS® | |
| 13 hours ago | Listing first seen on site |
Listing information is provided by Participants of the Stellar MLS. IDX information is provided exclusively for personal, non-commercial use, and may not be used for any purpose other than to identify prospective properties consumers may be interested in purchasing. Information is deemed reliable but not guaranteed. Properties displayed may be listed or sold by various participants in the MLS Copyright 2026, Stellar MLS.
Last checked: 2026-04-23 06:46 AM EDT


Did you know? You can invite friends and family to your search. They can join your search, rate and discuss listings with you.