3297 AMHERST AVENUESPRING HILL, FL 34609




Mortgage Calculator
Monthly Payment (Est.)
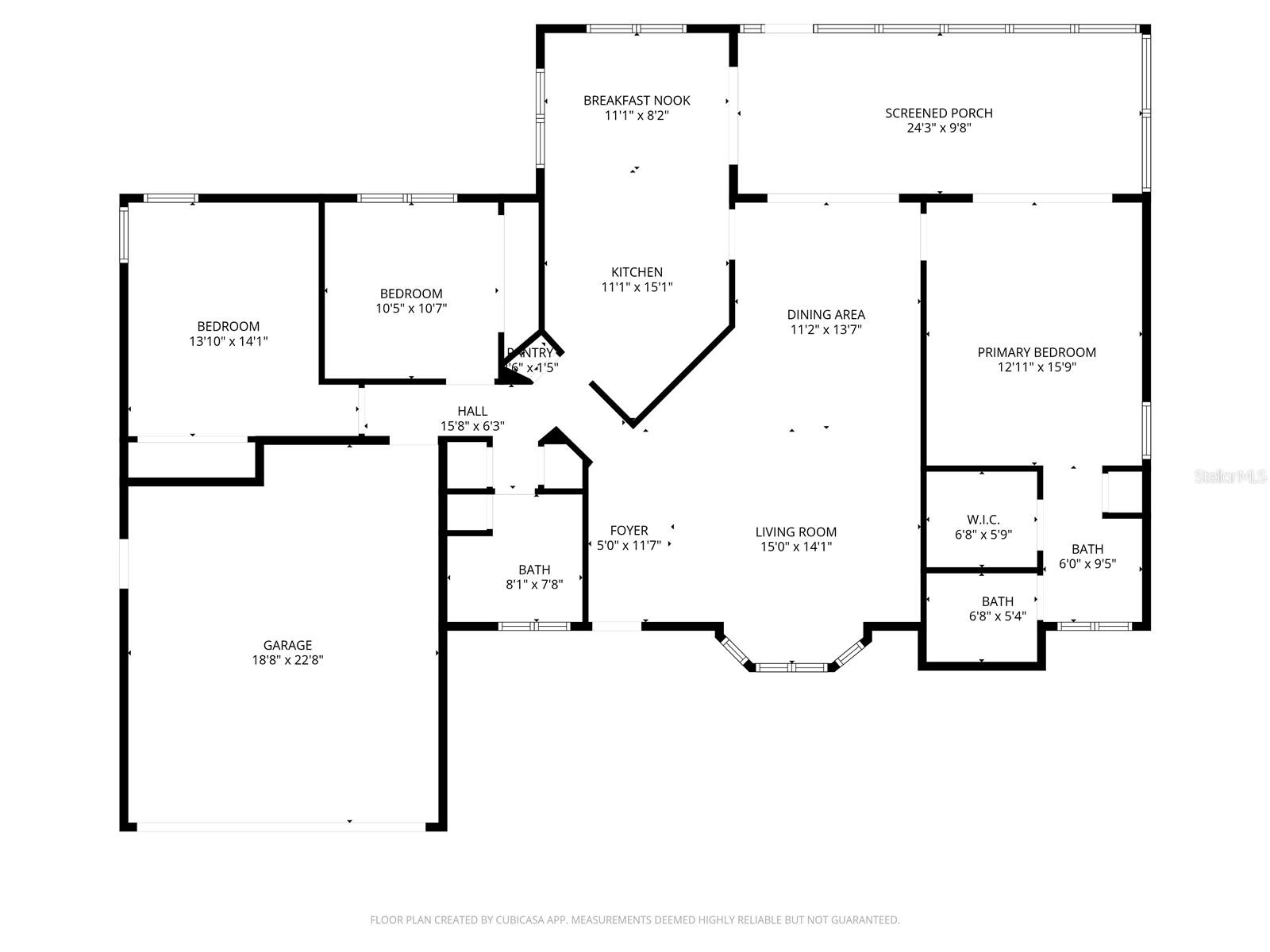
$1,277Situated on a spacious corner lot with an expansive yard, this home offers a functional layout and plenty of outdoor space. Ideal for buyers looking for space, potential, and the chance to create something special. Sitting on 1/3 acre, the property provides opportunity to install a swimming pool, build an ADU, or park your RV or boat. This 3 bedroom, 2 bathroom, split plan home featuring the primary suite on one side also offers an open floor plan and vaulted ceilings. The outside storage shed, gazebo, screened in rear lanai (complete with television) and spacious front porch offer ample opportunity to enjoy outdoor relaxation and entertaining. Centrally located and a short car ride to schools, shopping and entertainment . The property will benefit from flooring updates throughout (a flooring allowance will be provided with an appropriate offer) as carpeting is missing in two rooms and replacement is needed in others. Don't miss your chance to live near Florida’s Adventure Coast, offering an abundance of outdoor recreation, including crystal-clear springs, trails, and Gulf access. Popular activities include kayaking, paddleboarding, tubing, and wildlife viewing along the Weeki Wachee River. The area is also known for fishing, boating, scalloping, and beautiful sunsets along the Gulf at Hernando Beach and nearby parks, making it an ideal location for anyone who enjoys nature, water activities, and outdoor adventure.
| 14 hours ago | Listing updated with changes from the MLS® | |
| 5 days ago | Status changed to Active | |
| 6 days ago | Listing first seen on site |
Listing information is provided by Participants of the Stellar MLS. IDX information is provided exclusively for personal, non-commercial use, and may not be used for any purpose other than to identify prospective properties consumers may be interested in purchasing. Information is deemed reliable but not guaranteed. Properties displayed may be listed or sold by various participants in the MLS Copyright 2026, Stellar MLS.
Last checked: 2026-04-23 03:45 AM EDT

